Projekte
Dächer + Fassaden
Objekte + Skulpturen
Segel + Schirme
Zelte + Gebäude
Sonderkonstruktionen
Fliegende Bauten
Leistungen
Entwurf
Berechnung
Konstruktion
Zuschnitte
Gutachten
Bfl
Büro
Kontakt + Anfahrt
Veröffentlichungen
Bewerbung
Impressum
Emailkontakt
Textiles Bauen
Bauweisen + Know-how
Details
Materialien
Kosten
Links
Blog
Filme
2005
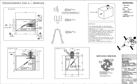
Eingangsüberdachung Elisabethen-Stift Lauingen
Minimalistisches PVC-Polyester Segel als Dauerbau
BFL :
Formfindung, Statik, Werkstattplanung Stahl und Membrane
>>